0%, oferta deweloperska - aparthotel w Regułach
Reguły gm. Michałowice Pokaż na mapie ›
Dodane: Wtorek, 02 Grudzień, 2025 09:16
488 366 zł
12209 zł/m2
Szczegóły ogłoszenia
- Kategoria: Mieszkania / Sprzedaż
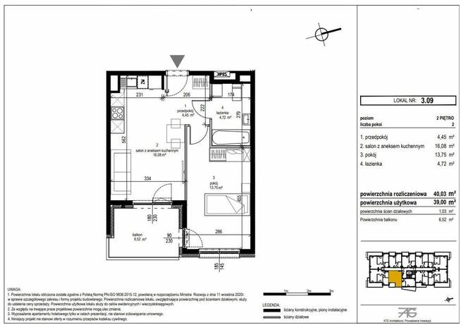
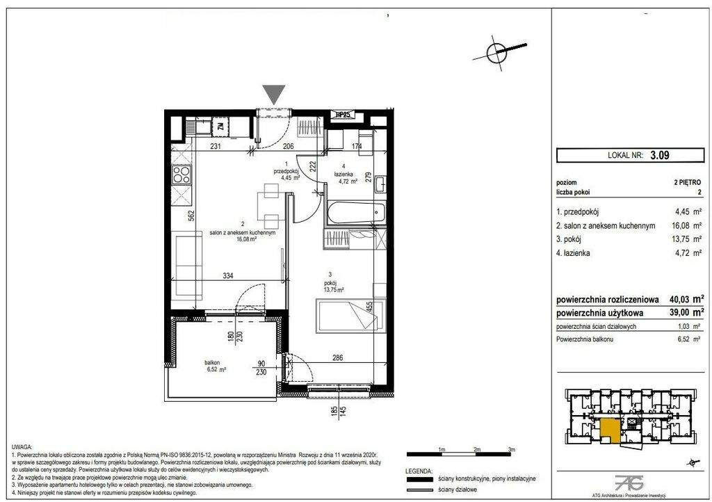
- Powierzchnia:40 m2
- Liczba pokoi:2 pokoje
- Zabudowa:Dom
- Tech. budowy:Inne
- Piętro :2 piętro
- Liczba pięter:3 piętra
- Rynek:Wtórny
- Rok budowy:2026
- Sprzedaż:Pośrednik
- Inf. dodatkowe:Balkon
- Cena: 488 366 zł / 12209 zł/m2
Opis oferty
KUPNO OD DEWELOPERA, 0% prowizji, termin realizacji - IV kwartał 2025LOKAL nr 3.09, balkon: 6,52 m
m-ce parkingowe naziemne ( nieobowiązkowy zakup ) - 30.000 zł
/ pełne zestawienie oferowanych lokali oraz informacja o standardzie
na stronie brokera pod linkiem: www.homeplus.pl/,1609/78/OI /
Budynek hotelowy ( jedno gwiazdkowy APARTHOTEL ) z parkingiem.
W ramach inwestycji do użytku zostanie oddanych 39 apartamentów
mieszkalnych o powierzchni od 24 m2 do 58,50 m2 wraz z miejscami
parkingowymi na zewnątrz, windą osobową oraz infrastrukturą
towarzyszącą.
Kameralność apartamentów zostanie zachowana dzięki budowie
trzypiętrowego budynku. Zaprojektowana inwestycja wyróżniać się
będzie elegancką i przyjazną architekturą oraz świetną
lokalizacją. Budynek położony będzie w spokojnej, zielonej
części miasta, naprzeciwko miejskiego placu zabaw wraz ze Strefą
Rekreacji w Regułach. W bliskim sąsiedztwie inwestycji znajdują
się: kolej linii WKD, szkoły, przedszkola, przystanek autobusowy,
Urząd Gminy Michałowice, Komisariat Policji czy też Poczta Polska
oraz obiekty handlowe.
Okolica jest bardzo dobrze skomunikowana z Warszawą.
TERMINY:
1. pozwolenie na użytkowanie budynku w którym znajduje się Lokal w
terminie do dnia 31.12.2025 roku.
2. termin odbioru Lokalu zostanie wyznaczony do dnia 30.01.2026 roku.
3. zawarcie umowy przyrzeczonej w formie aktu notarialnego, w której
nastąpi przeniesienie własności Lokalu nastąpi w terminie do dnia
31.12.2026 roku
ZALETY
⯈ Bliskość do centrum Warszawy – 10 min. autem
⯈ Bliskość przystanku kolei WKD – 4 min. pieszo
⯈ Tereny zielone
⯈ Po sąsiedzku Otwarta Strefa Rekreacji
⯈ Ogrzewanie z kotłowni gazowej wspólnej dla całego budynku
⯈ Jakość użytych materiałów budowlanych
⯈ Nowoczesna, cichobieżna i oszczędna winda
⯈ Możliwość swobodnej i elastycznej aranżacji indywidualnej
przestrzeni lokalu w tym punktów elektrycznych, hydraulicznych i
pozostałych mediów oraz ścian działowych
⯈ Telewizja kablowa, internet oraz telefon
___________RODO : HOMEPLUS Nieruchomości z siedzibą w (05-250)
Radzyminie, Al. Jana Pawła II 1B, informuje Państwa, iż podanie
danych jest dobrowolne, ale niezbędne w celu świadczenia usług
pośrednictwa w obrocie nieruchomościami przez nasze biuro.
Posiadają Państwo prawo dostępu do treści swoich danych i ich
sprostowania, usunięcia, ograniczenia przetwarzania, prawo do
przenoszenia danych, prawo do cofnięcia zgody w dowolnym momencie bez
wpływu na zgodność z prawem przetwarzania.
- Dane mogą być udostępniane przez HOMEPLUS podmiotom upoważnionym
do uzyskania informacji na podstawie przepisów ustawy z 21.08.1997 r.
o gospodarce nieruchomościami (Dz.U. z 2016 r. poz. 2147 ze zm.).
- Podane dane będą przetwarzane na podstawie art. 6 ust. 1 pkt a) i
zgodnie z treścią ogólnego rozporządzenia o ochronie danych.
- Administratorem danych jest HOME PLUS – Ireneusz Kurzyński oraz
HOME PLUS - Małgorzata Kosińska z siedzibą w Radzyminie , Al. Jana
Pawła II 1B, e-mail: @ Przekazane przez Państwa
osobowe będą przechowywane przez okres niezbędny do wykonania umowy
oraz dodatkowo przez okres wynikający z przepisów o przedawnieniu
roszczeń – w celu ewentualnej ochrony prawnej administratora. Nie
później niż rok po upływie tego okresu dane osobowe zostaną
trwale usunięte z systemów informatycznych, a dane papierowe –
trwale zniszczone. Mają Państwo prawo wniesienia skargi do Prezesa
Urzędu Ochrony Danych Osobowych (PUODO), gdy uznacie Państwo, iż
przetwarzanie podanych przez Państwa danych osobowych narusza
przepisy ogólnego rozporządzenia o ochronie danych osobowych z dnia
27 kwietnia 2016 r. (RODO).
---------------------
UWAGA!*Powyższe informacje nie stanowią oferty w rozumieniu Kodeksu
Cywilnego. HOMEPLUS Nieruchomości nie ponosi odpowiedzialności za
dokładność, kompletność i aktualność prezentowanych obiektów,
staramy się jednak, aby informacje dotyczące ofert były możliwie
najbardziej kompletne i aktualne.
Sprawdź zainteresowanie tym ogłoszeniem
Wyświetlenia
Data dodania
Ostatnio widziany
Obserwujących
Wysłane zapytania
Odsłony telefonu
Powiadom o podobnych ogłoszeniach
Lokalizacja: Reguły
Kategoria: Nieruchomości » Mieszkania » Sprzedaż
Cena: od 415000 zł do 561500 zł Powierzchnia : od 34 m2 do 46 m2
Chcę otrzymywać powiadomienia o nowych ofertach
Ireneusz Kurzyński
Konto firmowe
Na Lento.pl od 03 mar 2021
Odpowiada szybko
Strona użytkownika
- Wypromuj ogłoszenie
- Zgłoś naruszenie
- Drukuj ulotkę
- Edytuj/usuń ogłoszenie
- Udostępnij ogłoszenie
- Dodaj na Facebook







